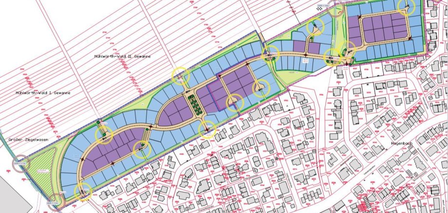
Unverbindliche Interessenbekundungen für den Erwerb von Bauplätzen aus städtischer Hand können bei der Verbandsgemeindeverwaltung abgegeben werden. Ansprechpartnerin ist Frau Christina Kupper, erreichbar per E-Mail unter christina.kupper@vg-hagenbach.de. Ein Vergabeverfahren wird der Stadtrat in den kommenden Monaten festlegen. Grundstückspreise und die weiteren Bedingungen können vom Rat erst festgelegt werden, wenn die endgültigen Kosten für die Erschließung bekannt sind.
Ausschreibung der Erschließungsarbeiten gestartet
